联系电话:
0550-2388158
产品详情
产品概述
锻钢法兰截止阀的阀杆开启或关闭行程相对较短,而且具有非常可靠的切断功能,在开启和关闭过程中,由于阀瓣与阀体密封面间的摩擦力比闸阀小,因而耐磨,开启高度一般仅为阀座通道直径的1/4,因此比闸阀小的多。通常在阀体和阀瓣上只有一个密封面,便于维修,在高温、高压介质的管路或装置上宜选用截止阀。如火电厂、核电厂、石油化工系统的高温、高压管路上,也可适用于水、蒸汽、油品、硝酸等介质。
产品特点
1、结构比闸阀简单,制造与维修都较方便。
2、密封面不易磨损及擦伤,密封性好,启闭时阀瓣与阀体密封面之间无相对滑动,因而磨损与擦伤均不严重,密封性能好,使用寿命长。
3、启闭时,阀瓣行程小,因而截止阀高度比闸阀小,但结构长度比闸阀长。
4、启闭力矩大、启闭较费力,启闭时间校长。
5、流体阻力大,因阀体内介质通道较曲折,流体阻力大,动力消耗大。
6、介质流动方向,公称压力PN≤16MPa时,一般采用顺流,介质从阀瓣下方向上流;公称压力PN≥20MPa时,一般采用逆流,介质从阀瓣上方向下流,以增加密封性能。
7、全开时阀瓣经常受冲蚀。
主要零件材料
| 序号 | 零件名称 | CS to ASTM | AS to ASTM | SS to ASTM | |
| Type A105 | Type F22 | Type F304(L) | Type F316(L) | ||
| 1 | 阀体 | A105 | A182 F22 | A182 F304(L) | A182 F316(L) |
| 2 | 垫片 | Corrugated SS+graphite | SS+PTFE | ||
| 3 | 螺栓 | A193 B7 | A193 B16 | A193 B8 | A193 B8M |
| 4 | 销钉 | A276 420 | A276 304 | ||
| 5 | 填料压套 | A276 410 | A182 F304(L) | A182 F316(L) | |
| 6 | 活节螺栓 | A193 B7 | A193 B16 | A193 B8 | A193 B8M |
| 7 | 螺母 | A194 2H | A194 4 | A194 8 | A194 8M |
| 8 | 阀杆螺母 | A276 410 | |||
| 9 | 螺母 | A194 2H | A194 4 | A194 8 | A194 8M |
| 10 | 铭牌 | SS | |||
| 11 | 手轮 | A197 | |||
注:客户需求的其他材质也可采用,密封面材料配对客户指定内件代号决定。

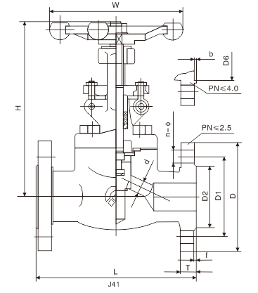
主要外形连接尺寸和重量
| NPS(in) | 1/2" | 3/4" | 1" | 1-1/4" | 1-1/2" | 2" | ||
L(RF) L1(BW) | 150Lb | 108 | 117 | 127 | 140 | 165 | 203 | |
| 300Lb | 152 | 178 | 203 | 216 | 229 | 267 | ||
| 600Lb | 165 | 190 | 216 | 229 | 241 | 292 | ||
| H(开) | 150Lb~300Lb | 166 | 171 | 207 | 240 | 258 | 330 | |
| 600Lb | 171 | 207 | 240 | 258 | 330 | 380 | ||
| W | 100 | 100 | 125 | 160 | 160 | 180 | ||
| 重量 (Kg) | 150Lb | RF | 4.5 | 6.9 | 9.8 | 13.5 | 19.5 | 28.0 |
| BW | 2.3 | 3.6 | 7.8 | 8.2 | 12.0 | 15.0 | ||
| 300Lb | RF | 4.8 | 7.7 | 11.0 | 16.8 | 21.2 | 32.6 | |
| BW | 2.8 | 4.0 | 8.5 | 9.2 | 12.6 | 16.8 | ||
| 600Lb | RF | 5.6 | 7.8 | 12.5 | 17.0 | 23.5 | 38.8 | |
| BW | 3.4 | 4.7 | 9.2 | 10.5 | 13.3 | 18.9 | ||






